Indulge in timeless elegance with the Classic Deluxe range cooker. Preserving the charm of the Classic bakers-style windows and bevelled doors, the Classic Deluxe offers an enhanced cooking experience – from the multifunction oven and Handyrack to the telescopic shelves. A choice of slow cooker or proving drawer for the 110cm model provides more flexibility and functionality to cooks and bakers alike. Personalise the characterful design with a choice of eight colours, including matt Charcoal Black and pastel Heather, as well as two complementary trim options: Chrome and Antique Brass.
Key Features
- Design-led premium door construction
- NEW White LED touch display with minute mind
- NEW Streamlined fascia panel with uniformed control dial layout
- Dedicated 27 Slow Cook Cavity
- Precision engineering and manufacturing for premium quality, functionality and usability
- 2 Year Warranty Period
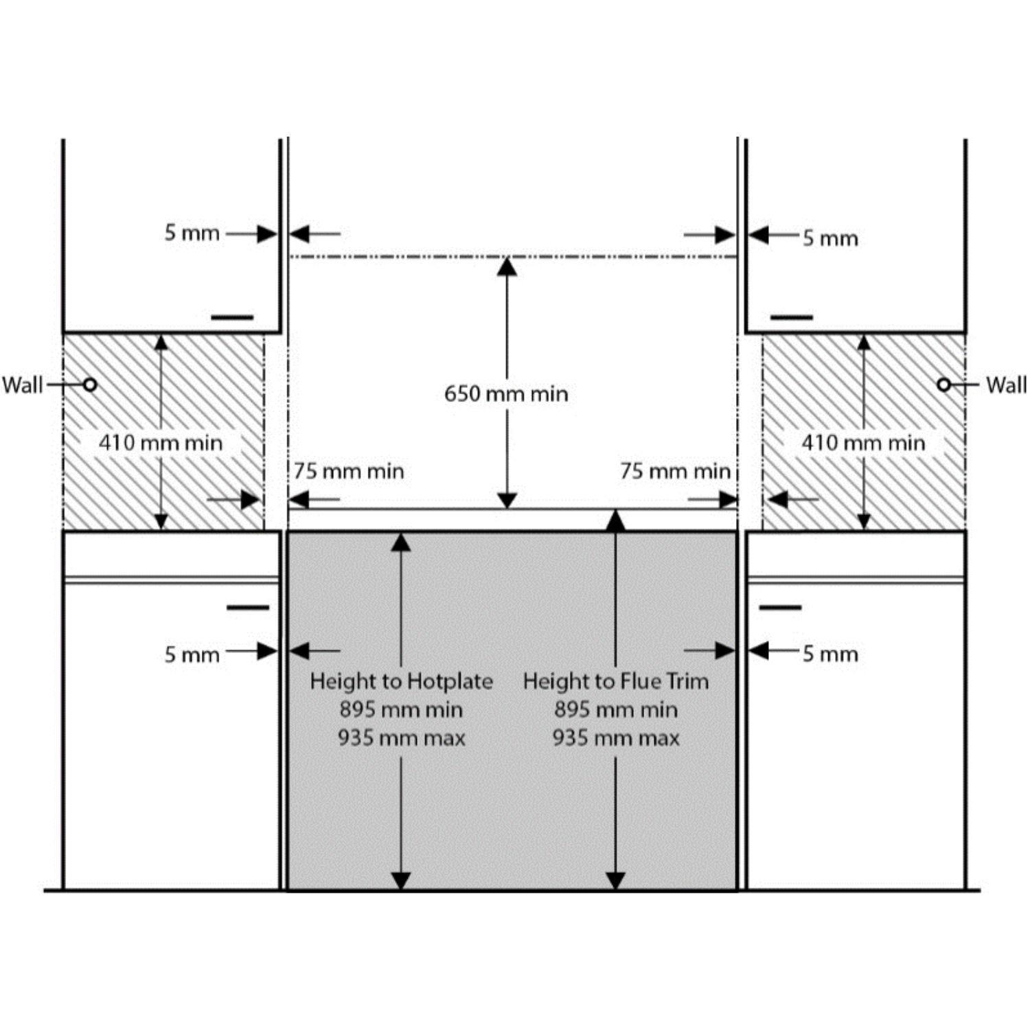
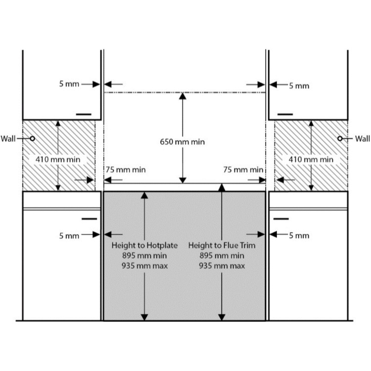
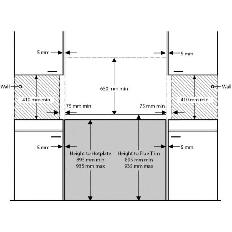
- Dimensions (mm): H895 x W1092 x D666
Big Capacity
80 Litre 8 function Multifunction Oven now including DUO / 80 Litre Fan Oven
Flexible Cooking
Deluxe 5 burner gas hob with half-smooth half-grooved griddle and wok cradle
Deluxe 2.3kW Flexi-Grill
INCREASED CAPACITY Deluxe 2.3kW Flexi-Grill on easy-glide telescopic runners with 4 grilling height positions
Easy cooking for you
Rangemaster's unique handyrack included within Multifunction Oven for easy roasting
Self-adjusting for your convenience
NEW Self-adjusting magnetic plinth to complement all cabinetry, plinth and work surface heights







