Experience timeless elegance with the Classic range cooker. It is beautifully crafted in Leamington Spa and effortlessly blends vintage charm with modern practicality. The baker-style windows are a hallmark of the Classic range; they offer a glimpse of the baked goods inside, and along with the traditional temperature gauge on the 90cm and 100cm models, they are as functional as they are stylish. Whether creating a family feast or delectable pastries, the Classic sits at the heart of characterful kitchens in four colours – Pale Cream, Black, Misty Blue and Bordeaux.
Key Features
- Design-led premium door construction
- NEW White LED touch display with minute mind
- NEW Streamlined fascia panel with uniformed control dial layout
- 2 Year Warranty Period
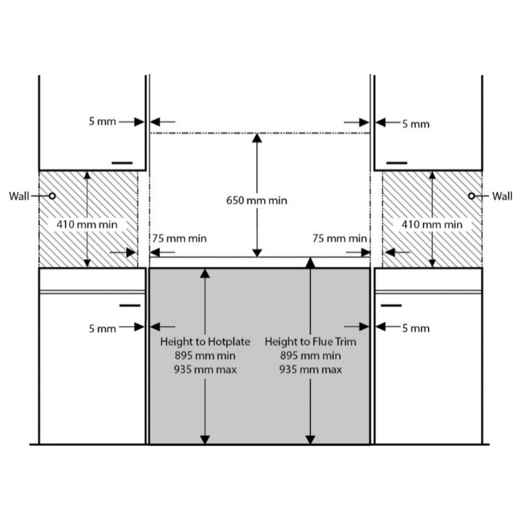
- Dimensions (mm): H895 x W900 x D666
Big Capacity
· 80 Litre 8 function Fan Oven / 67 Litre Fan Oven
Flexible Cooking
5 burner gas hob with half-smooth half-grooved griddle
Deluxe 2.3kW Flexi-Grill
INCREASED CAPACITY Deluxe 2.3kW Flexi-Grill on easy-glide telescopic runners with 4 grilling height positions
Top-notch quality
Precision engineering and manufacturing for premium quality, functionality and usability
Self-adjusting for your convenience
NEW Self-adjusting magnetic plinth to complement all cabinetry, plinth and work surface heights
Catalytic Cleaning
Catalytic lining absorbs grease and when the oven is heated to 200ºC deposits are softened and can then simply be wiped away.








