Indulge in timeless elegance with the Classic Deluxe range cooker. Preserving the charm of the Classic bakers-style windows and bevelled doors, the Classic Deluxe offers an enhanced cooking experience – from the multifunction oven and Handyrack to the telescopic shelves. A choice of slow cooker or proving drawer for the 110cm model provides more flexibility and functionality to cooks and bakers alike. Personalise the characterful design with a choice of eight colours, including matt Charcoal Black and pastel Heather, as well as two complementary trim options: Chrome and Antique Brass.
Key Features
- Design-led premium door construction
- NEW White LED touch display with minute mind
- NEW Streamlined fascia panel with uniformed control dial layout
- Dedicated 27 Slow Cook Cavity
- Precision engineering and manufacturing for premium quality, functionality and usability
- 2 Year Warranty Period
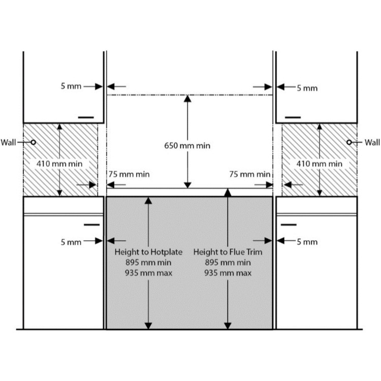
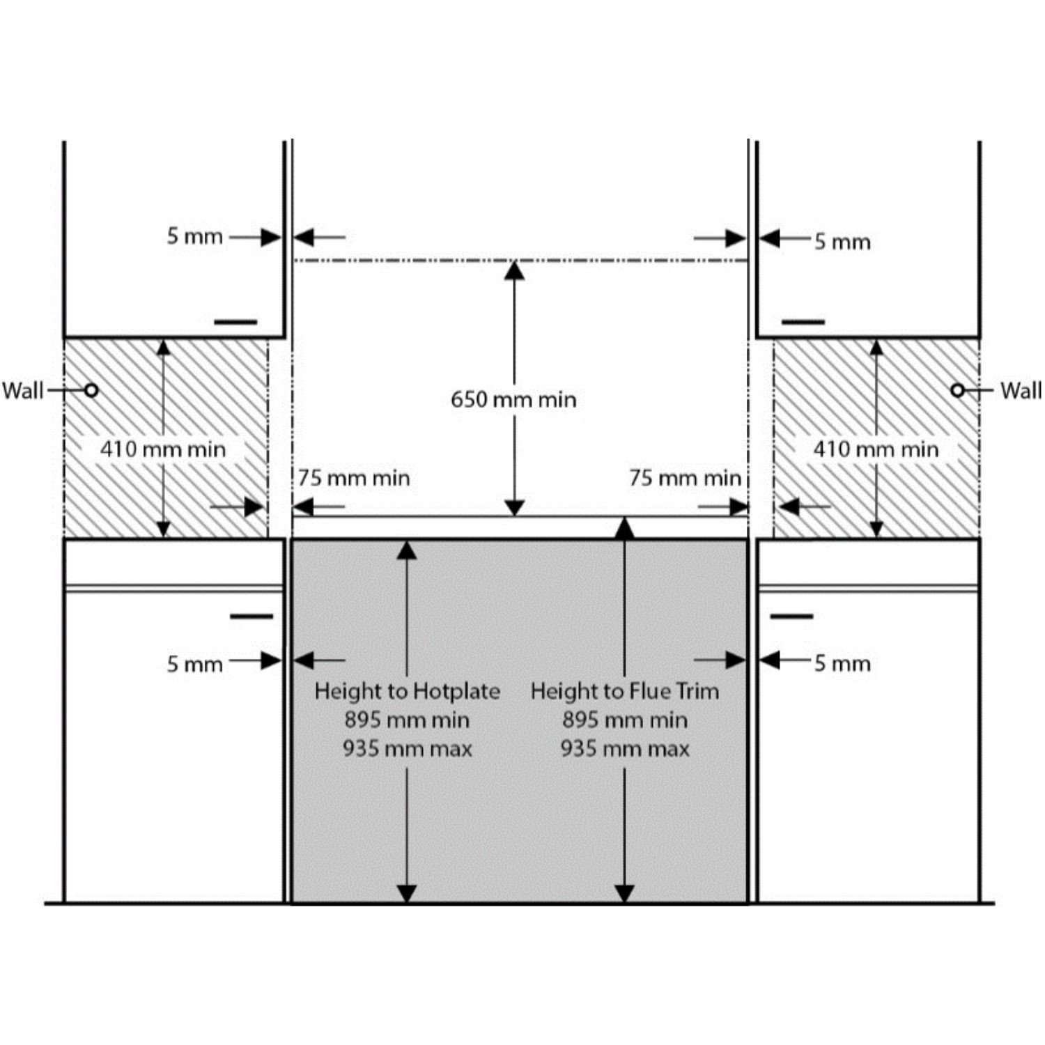
- Dimensions (mm): H895 x W1092 x D666
Big Capacity
80 Litre 8 function Multifunction Oven now including DUO / 80 Litre Fan Oven
Flexible Cooking
Deluxe 5 burner gas hob with half-smooth half-grooved griddle and wok cradle
Deluxe 2.3kW Flexi-Grill
INCREASED CAPACITY Deluxe 2.3kW Flexi-Grill on easy-glide telescopic runners with 4 grilling height positions
Easy cooking for you
Rangemaster's unique handyrack included within Multifunction Oven for easy roasting
Self-adjusting for your convenience
NEW Self-adjusting magnetic plinth to complement all cabinetry, plinth and work surface heights
Catalytic Cleaning
Catalytic lining absorbs grease and when the oven is heated to 200ºC deposits are softened and can then simply be wiped away.








